Aperçu
Adresse Clos Saint-Pierre 11, 1370 Jodoigne
Peb PEB PEB_A
Surface totale 326 m2
Surface du terrain 706 m2
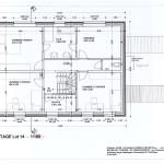
Surface du séjour 30 m2
Nombre de garages 1
Descriptif

TRADI-CONSTRUCT a le plaisir de vous présenter en exclusivité son nouveau projet situé à Jodoigne, au cœur d’un environnement résidentiel calme et recherché. Cette villa 4 façades, actuellement en cours de réalisation, allie l'élégance de l'architecture brabançonne aux technologies de confort les plus modernes.

Érigée sur un magnifique terrain de 7 ares 06 centiares, cette propriété offre un espace extérieur généreux, garantissant calme, intimité et une qualité de vie incomparable au sein de la cité médiévale et de ses paysages verdoyants.

Caractéristiques principales :

  • Efficacité énergétique (label PEB A) : Profitez d'une habitation à la pointe de l'économie d'énergie grâce à :

    • Une enveloppe globale à haute isolation thermique ;

    • Un système de pompe à chaleur performant ;

    • 12 panneaux photovoltaïques déjà inclus ;

    • Des châssis en triple vitrage pour un confort acoustique et thermique optimal.

Les points forts :

  • Modulabilité : Possibilité d'aménager le 2ème étage via un escalier fixe déjà prévu, permettant la création de 2 chambres complémentaires et une salle de douche (idéal pour une suite parentale ou un espace dédié aux adolescents).

  • Localisation stratégique : Située dans un quartier paisible de Jodoigne, vous bénéficiez d'un environnement authentique tout en restant à proximité immédiate des grands axes (E40 vers Bruxelles et Liège), des écoles de qualité, des commerces locaux et du centre-ville historique dynamique.

  • Terrain de 7a 06ca : Un jardin spacieux entourant les 4 façades de la villa, offrant de multiples possibilités d'aménagement extérieur (terrasse, piscine ou potager) avec une vue dégagée sur la campagne environnante.

Informations financières
Prix : 625 000 € hors taxes

Prix demandé hors TVA et hors frais de notaire (hors éventuel droits d’enregistrement)

Autres informations
Disponibilité A l'acte
Type de chauffage Pompe à Chaleur
Raccordement eau oui
Raccordement électrique oui
Panneaux solaires oui
Type de vitrage Triple