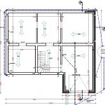
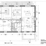
Aperçu
Adresse Chemin du Bois de Hal 68, 1420 Braine l'Alleud
Peb PEB PEB_A
Surface totale 387 m2
Surface du terrain 1129 m2
Surface du séjour 45 m2
Nombre de garages 1
Descriptif

Un cadre de vie privilégié et des performances énergétiques d'avenir

TRADI-CONSTRUCT a le plaisir de vous présenter en exclusivité son nouveau projet situé à Braine-l'Alleud, au cœur d’un environnement résidentiel et recherché. Cette villa 4 façades, actuellement en cours de réalisation, allie l'élégance de l'architecture brabançonne aux technologies de confort les plus modernes.

Érigée sur un magnifique terrain de 11 ares 29 centiares, cette propriété offre un espace extérieur généreux, garantissant calme, intimité et une qualité de vie incomparable à deux pas de la capitale.

Caractéristiques principales :

  • Efficacité énergétique (label PEB A) : Profitez d'une habitation à la pointe de l'économie d'énergie grâce à :

    • Une enveloppe globale à haute isolation thermique ;

    • Un système de pompe à chaleur performant ;

    • 12 panneaux photovoltaïques déjà inclus ;

    • Des châssis en triple vitrage pour un confort acoustique et thermique optimal.

Les points forts :

  • Modulabilité : Possibilité d'aménager le 2ème étage via un escalier fixe déjà prévu, permettant la création de 2 chambres complémentaires et une salle de douche (idéal pour une suite parentale ou un espace dédié aux adolescents).

  • Localisation stratégique : Située dans un quartier paisible de Braine-l'Alleud, vous bénéficiez d'un environnement verdoyant tout en restant à proximité immédiate des grands axes (R0/E19), de la gare, des écoles de renom et du centre-ville dynamique.

  • Terrain de 11a 29ca : Un jardin spacieux entourant les 4 façades de la villa, offrant de multiples possibilités d'aménagement extérieur (terrasse, piscine ou potager).

Informations financières
Prix : 820 000 € hors taxes

Prix demandé hors TVA et hors frais de notaire (hors éventuel droits d’enregistrement)

Autres informations
Disponibilité A l'acte
Type de chauffage Pompe à Chaleur
Raccordement eau oui
Raccordement électrique oui
Panneaux solaires oui
Type de vitrage Triple