Aperçu
Adresse Rue Val du puits 12, 1390 Bossut
Peb PEB PEB_A
Surface totale 490 m2
Surface du terrain 1498 m2
Surface du séjour 49 m2
Nombre de garages 2
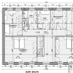
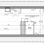
Descriptif

Un cadre de vie privilégié et des performances énergétiques d'avenir

TRADI-CONSTRUCT a le plaisir de vous présenter en exclusivité son nouveau projet situé à Bossut, au cœur de la charmante commune de Grez-Doiceau. Cette villa jointive par les garages, actuellement en cours de réalisation, allie l'élégance de l'architecture brabançonne aux technologies de confort les plus modernes.

Érigée sur un magnifique terrain de 14 ares 98 centiares, cette propriété offre un espace extérieur généreux, garantissant calme, intimité et une vue dégagée sur la campagne environnante.

Caractéristiques principales :

  • Idéal pour profession libérale : le rez-de-chaussée dispose d'un espace bureau indépendant, parfaitement conçu pour accueillir une activité professionnelle à domicile ou un espace de télétravail au calme.

  • Efficacité énergétique (Label PEB A) : profitez d'une habitation à la pointe de l'économie d'énergie grâce à :

    • Une enveloppe globale à haute isolation thermique ;

    • Un système de pompe à chaleur performant ;

    • 12 panneaux photovoltaïques déjà inclus; 

    • Des châssis en triple vitrage pour un confort acoustique et thermique optimal.

  • Personnalisation : vous avez encore la main sur l'ambiance de votre futur foyer ! Plusieurs finitions intérieures, prévues dans le budget, restent à votre choix (sanitaires, carrelages, menuiseries intérieures, etc.).

Les points forts :

  • Modulabilité : possibilité d'aménager le 2ème étage via un escalier fixe déjà prévu, permettant la création de 2 chambres complémentaires et une salle de douche (idéal pour une suite parentale ou un espace dédié aux enfants).

  • Localisation stratégique : située dans le village paisible de Bossut, vous bénéficiez d'un environnement verdoyant et authentique, tout en restant à proximité rapide des axes (E411/N25), des écoles et du centre de Grez-Doiceau.

  • Terrain de 14a 98ca : Un jardin spacieux entourant la villa, offrant de multiples possibilités d'aménagement extérieur.

Informations financières
Prix : 890 000 € hors taxes

Prix demandé hors TVA et hors frais de notaire (hors éventuel droits d’enregistrement)

Autres informations
Disponibilité A l'acte
Type de chauffage Pompe à Chaleur
Raccordement eau oui
Raccordement électrique oui
Panneaux solaires oui
Type de vitrage Triple