Aperçu
Adresse Rue Val du puits 10, 1390 Bossut
Peb PEB PEB_A
Surface totale 353 m2
Surface du terrain 801 m2
Surface du séjour 39 m2
Place de parking 2
Descriptif

Un cadre de vie privilégié et des performances énergétiques d'avenir

TRADI-CONSTRUCT a le plaisir de vous présenter en exclusivité son nouveau projet situé à Bossut, au cœur de la commune prisée de Grez-Doiceau. Cette villa 4 façades jointive par le carport, actuellement en cours de réalisation, allie l'élégance de l'architecture brabançonne aux technologies de confort les plus modernes sur un superbe terrain de 8 ares 01 centiares.

Espace, Famille et Profession Libérale

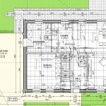
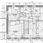
Conçue pour offrir un confort de vie absolu, la villa se déploie sur trois niveaux entièrement aménagés :

  • Espace de vie & Bureau : le rez-de-chaussée dispose d'un espace bureau indépendant, idéal pour une profession libérale ou un télétravail productif, ainsi qu'un vaste séjour baigné de lumière.

  • 6 Chambres & 3 Salles de bains : la villa offre six chambres spacieuses et trois salles de bains/douches modernes, garantissant intimité et fluidité pour toute la famille.

  • Personnalisation : vous avez encore la main sur l'ambiance de votre futur foyer ! Plusieurs finitions intérieures, prévues dans le budget, restent à votre choix (sanitaires, carrelages, menuiseries intérieures, etc.).

Efficacité énergétique (Label PEB A)

Profitez d'une habitation à la pointe de l'économie d'énergie grâce à :

  • Une enveloppe globale à haute isolation thermique ;

  • Un système de pompe à chaleur performant ;

  • 12 panneaux photovoltaïques déjà inclus ;

  • Des châssis en triple vitrage pour un confort acoustique et thermique optimal.

Les points forts :

  • Terrain de 8a 01ca : un jardin spacieux entourant les 4 façades, offrant calme, intimité et une vue dégagée sur la campagne environnante.

  • Localisation stratégique : située dans le village paisible et authentique de Bossut, la villa bénéficie d'un environnement verdoyant tout en restant à proximité immédiate des axes majeurs (E411/N25), des écoles et du centre de Grez-Doiceau.

Informations financières
Prix : 694 800 € hors taxes

Prix demandé hors TVA et hors frais de notaire (hors éventuel droits d’enregistrement)

Autres informations
Disponibilité A l'acte
Type de chauffage Pompe à Chaleur
Raccordement eau oui
Raccordement électrique oui
Panneaux solaires oui