Aperçu
Adresse Rue Val du puits 10, 1390 Bossut
Peb PEB PEB_A
Surface totale 353 m2
Surface du terrain 801 m2
Surface du séjour 39 m2
Place de parking 2
Descriptif

Un cadre de vie privilégié et des performances énergétiques d'avenir

TRADI-CONSTRUCT a le plaisir de vous présenter en exclusivité son nouveau projet situé à Bossut, au cœur de la charmante commune de Grez-Doiceau. Cette villa 4 façades jointive par le carport, actuellement en cours de réalisation, allie l'élégance de l'architecture brabançonne aux technologies de confort les plus modernes.

Érigée sur un magnifique terrain de 8 ares 01 centiares, cette propriété offre un espace extérieur généreux, garantissant calme, intimité et une vue dégagée sur la campagne environnante.

Caractéristiques principales :

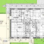
  • Idéal pour profession libérale : le rez-de-chaussée dispose d'un espace bureau indépendant, parfaitement conçu pour accueillir une activité professionnelle à domicile ou un espace de télétravail au calme.

  • Efficacité énergétique (label PEB A) : profitez d'une habitation à la pointe de l'économie d'énergie grâce à :

    • Une enveloppe globale à haute isolation thermique ;

    • Un système de pompe à chaleur performant ;

    • 12 panneaux photovoltaïques déjà inclus ;

    • Des châssis en triple vitrage pour un confort acoustique et thermique optimal.

  • Personnalisation : vous avez encore la main sur l'ambiance de votre futur foyer ! Plusieurs finitions intérieures, prévues dans le budget, restent à votre choix (sanitaires, carrelages, menuiseries intérieures, etc.).

Les points forts :

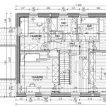
  • Modulabilité : possibilité d'aménager le 2ème étage via un escalier fixe déjà prévu, permettant la création de 2 chambres complémentaires et une salle de douche (idéal pour une suite parentale ou un espace dédié aux enfants).

  • Localisation stratégique : située dans le village paisible de Bossut, vous bénéficiez d'un environnement verdoyant et authentique, tout en restant à proximité rapide des axes (E411/N25), des écoles et du centre de Grez-Doiceau.

  • Terrain de 8a 01ca : Un jardin spacieux entourant les 4 façades de la villa, offrant de multiples possibilités d'aménagement extérieur.

Informations financières
Prix : 665 000 € hors taxes

Prix demandé hors TVA et hors frais de notaire (hors éventuel droits d’enregistrement)

Autres informations
Disponibilité A l'acte
Type de chauffage Pompe à Chaleur
Raccordement eau oui
Raccordement électrique oui
Panneaux solaires oui